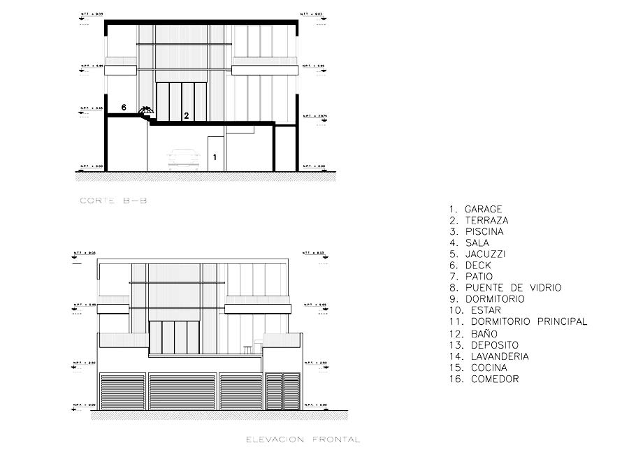
Casa Cristal. Nro 1 Casa Cristal. Nro 2 Casa Cristal. Nro 3 Casa Cristal. Nro 4 Casa Cristal. Nro 5 Casa Cristal. Nro 6 Casa Cristal. Nro 7 Casa Cristal. Nro 8 Casa Cristal. Nro 9 Casa Cristal. Nro 10